Продам помещение свободного назначения 1580000 м.кв.

на карте
Просмотров 26
100 000 000 руб.
на 100% дешевле похожих объектов ?
1580000 м2
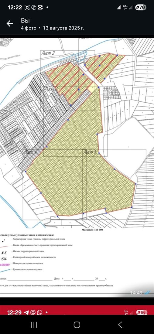
Сыктывкар , город Сыктывкар, Сысольское шоссе, д. 39
Никита
Показать телефон
Данные актуальны на 28.11.2025
Пожаловаться на объявление
ID в ИМЛС: 11014861 Продам Земельный участок площадью 158 га ( г Сыктывкар Сысольское шоссе 39). Участок хороших ровный, ранее был в населенном пункте. Рядом газ, подведено электричество. Общий участок 158 Га Участок разбит по 10 соток на участки

Дополнительная информация

Тип здания - Этаж - Этажность - Количество комнат - Вход - Ремонт -
Интернет - Кондиционер - Вентиляция - Пожарная сигнализация - Красная линия -
Динамика изменения цен на рынке недвижимости ?

По городу Сыктывкар, в категории Универсальные помещения
За последние полгода средняя сумма за кв.м. уменьшилась на 2205 руб. Колебание цен происходило от 47176 руб. до 49391 руб. Тендов к значительному изменению цены в последнем месяце не наблюдается.
Вход в личный кабинет